登録番号 第8号 堀内地区

【売戸建て】
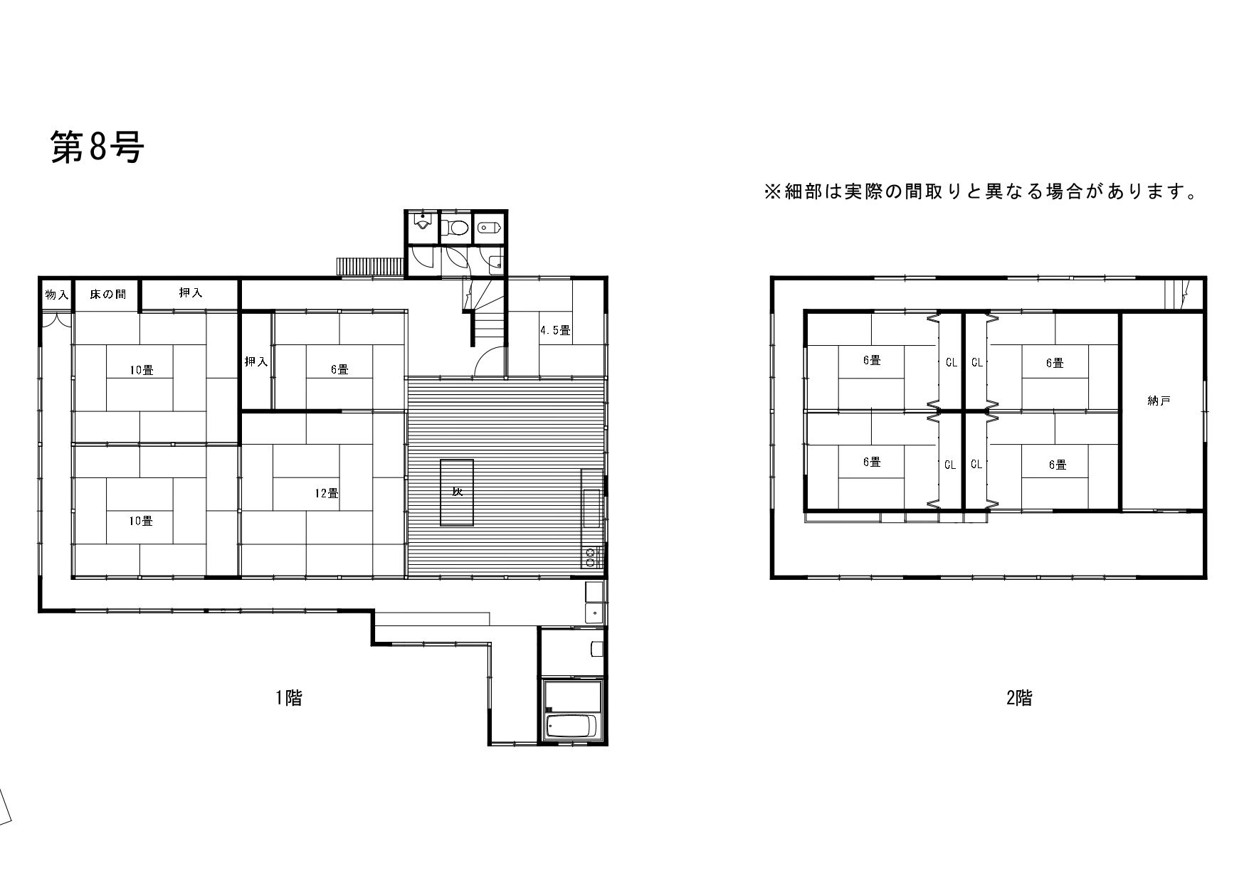
| 価格 | 応相談 | 間取り | 9DK | 
| 交通 | 三陸鉄道 堀内駅 徒歩約5分 | 所在地 | 岩手県下閉伊郡普代村第21地割字堀内 | 
| 築年月 | 明治40年2月 | 用途 | 住宅 | 
| 延床面積 | 265.85㎡ | 構造 | 木造2階建て | 
| 土地面積 | 94.78㎡ | ||
| 電気 | 即利用可 | 入居の状況 | 小規模な改修が必要 | 
| ガス | 即利用可(プロパン) | 売却・賃貸 | 売却 | 
| 水道 | 即利用可 | ||
| トイレ | 簡易水洗 | 平面図 | horinai9dk (PDF 41.1KB) | 
| 駐車場 | あり 2台以上 | 配置図 | horinai9dk haichi.pdf (PDF 36.1KB) | 
| 倉庫 | 物置あり | 情報公開日 | 2025年6月 | 
| 登録番号 | 第8号 | 
| 備考 | 家電製品等については、購入者様と応相談 | 
<写真>
|  |  |  |  | 
|  |  |  |  | 
|  |  |  |  | 
|  |  | 
